Uusi tarjous: MAHDOLLISTA OSTAA ”RAAKAPINNALLA”, viimeistele oma kotisi itse! (Hyvitämme poisjäävät asiat asiallisesti.)
Esittelemme joko työmaalla tai toimistollamme (Isokatu 82). Ole rohkeasti yhteydessä ja järjestetään yhteinen aika ja jutellaan Sinun toiveista ja ideoista.

ENSIMMÄINEN VAIHE MYYTY / VARATTU, AVASIMME TOISEEN VAIHEEN MYYNNIN!
Onko lähes mahdottomalta tuntunut unelmasi omasta isosta kahden auton lämpimästä tallista ja suuresta pihasta jäänyt toteutumatta? Onneksi olkoon, olet löytänyt etsimäsi!
Onko Sinunkin toiveena yksitasoinen koti valoisalla ja loppuun asti mietityllä pohjalla?
Haaveiletko omakotitalosta, joka sijaitsee rauhallisella alueella ja omalla tontilla, mutta vain reilu 10min ajomatkan päässä keskustasta?

Talli on todella hieno lisä tähän kokonaisuuteen:
– suuri nosto-ovi helpottaa talliin ajoa ja luo edustavan julkisivun
– tallissa reilusti tilaa kahdelle autolle, tai yhdelle autolle ja ”leluille”
– mahdollisuus yhdistää varasto (10m2) autotalliin, jolloin kokonaisuus on 44m2 harrastetila.
– kaukolämpö lattiassa.



Nämä puistoalueeseen rajoittuvat, korkeasti varustellut ja laadukkaasti rakennetut, tyylikkäät omakotitalot täyttävät vaativammankin kodinostajan tarpeet. Ja jos jokin ei vastaa toiveitasi, vielä voit vaikuttaa vaikka mihin tulevassa Kodissasi.
Tutustu asuntoihin 3D maailmassa: Huomioithan, että ikkunasta näkyvä maisema on vain esimerkkinä. Tule tontille näkemään ja kokemaan puistonäkymät itse!
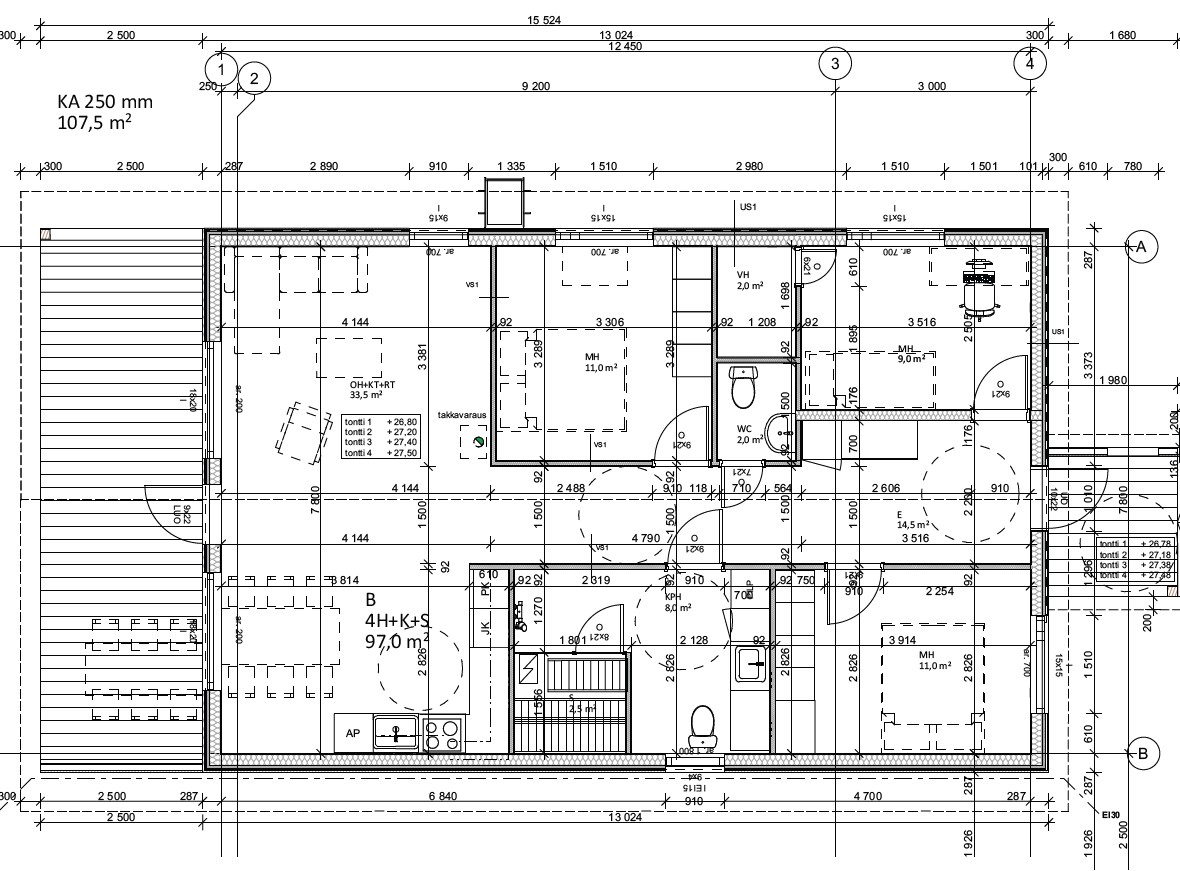
75m2 3h+k+s+AT
97m2 4h+k+s+AT

Jatkamme tässä kohteessa meille tutuilla teemoilla: Korkea tasoinen arkkitehtuuri, luonto, aurinkoiset suuret terassit ja oma yksityisyys ovat kokonaisuuden kantavia voimia.

Varustelu näissä kodeissa on erittäin korkea, ja tarjoaa hyvän pohjan luoda juuri Sinun näköisen kodin. Kysy lisää varustelusta ja etenkin ainutlaatuisesta muutospalvelusta, joka takaa että tunnet olosi kotoisaksi päivästä yksi. Tee juuri itsesi näköinen koti, aina ammattilaisen avustuksella:
Sonell tarjoaa markkinoiden joustavimman asiakasmuutospalvelun, jossa yhdistyy korkea varustelutaso, paikalliset toimijat ammattilaisineen ja Sinun toiveesi. Kysy lisää, tehdään yhdessä unelmiesi koti. Tässä mm. mitä lähtötasossa on tai mitä voit muutos- ja lisätyönä valita:
– Kymmeniä lattioita, lähtötasossa Valkokuultolakattu parketti
– Kymmeniä laattoja, joista valitset omasi ammattilaisen avulla, lähtötasossa valkoinen laatta.
– Damixan laadukkaat Rain Showerit ja kaarihana keittiössä
– Tervaleppäpanelointi ja Design Lauteet ja tyylikäs kiuas
– Täysilasiseinä mahdollinen kauppaan kuuluvana saunaan
– LED valaistus Eteisessä, Keittiössä (Välitila), PH/KK tilassa ja Saunan katossa (tähtitaivas)
– Boschin rosteri (tai valkeat) kodinkoneet, mukana myös induktiotaso, integroitu kiertoilmauuni.
– Kalusteet MDF (useita värejä) keittiössä, wc:ssä ja KHH/PH tilassa. Eteisessä lattiasta KATTOON ulottuvat tyylikkäät peililiukuovet. Keittiössä komposiittialla, hidastimet laatikostoissa.Jne jne.

Näissä kodeissa asut edullisemmin kuin vastaavissa As Oy muotoisissa kodeissa ja teet kaikki päätökset itsenäisesti, kuten omakotitaloasujan kuuluukin tehdä.
Edullinen tontin hinta, kustannustehokas ja luotettava kaukolämpö lämmitysmuotona ja poisjäävät isännöitsijän kulut pitävät asumiskulut mielyttävän alhaisina. Jokainen talo omistaa oman osansa tontista (hallinnonjakosopimus). Tarjoamme myös mahdollisuutta vuokrata tontti.
Tontista tehdään oma kauppakirja. (Tontti on mukana velattomassa hinnassa taulukossa.)
Tontinosuus: vain 40.000 €/ OKT,75m2
Tontinosuus: vain 55.000 €/ OKT,97m2
Ja rakentamisen aikana säästät myös veroissa, koska varainsiirtovero maksetaan vain tontin osalta. Rakentamisesta tehdään erillinen turvallinen pienurakkasopimus, jolla turvataan kodin ostajan edut rakentamisen aikana ja jälkeen. Takuumme pysyy myös voimassa normaalia takuuta pidempään, eli 2vuotta muuttamisen jälkeen.



Työmaa etenee vauhdilla ja ensimmäiset talot ovat jo viimeistelytöissä. Katso alla muutamia 3D mallista ja työmaalta kuvia ja tule esittelyyn tutustumaan molempiin talotyyppeihin, vaikka mittanauhan kanssa.
Kysy myös yksityisesittelyä, ne onnistuvat joustavasti kyllä!












